一、住宅产品结构特征
从成交套数占比变化上看,与2023年1-11月相比,2024年1-11月30个代表城市中有26个城市120平以上产品成交套数占比上升,改善需求仍是新房市场重要支撑。
二、房企产品动态
· 11月22日,中国金茂&越秀地产于成都举行新品发布会,现场推出全新产品——天鹭满园,项目定位高端改善住宅,同时也是中国金茂“金玉满堂”产品战略中“满系”的开篇之作。
· 11月9日,绿城华中公司于长沙举行产品发布会,此次发布会推出的绿城·玉海棠是绿城“海棠系”在长沙的首例作品,项目考虑当代家庭居住需求的痛点,打造长沙新规后首批零公摊住宅。
三、房企产品系解析
招商蛇口围绕客户需求及审美的变化,打造“3+1”产品体系,包括天青、启序、揽阅3大产品线,分别对应现代东方、人文美学、自在乐活的产品风格;以及以“玺”为名的高端豪宅风格产品系列。
四、产品设计亮点
· 建筑立面:武汉中建壹品·汉韵公馆项目汲取荆楚文化,将“凤鸟、编钟、云纹”等元素融入建筑立面,借鉴楚式双檐造型,打造层次丰富、错落有致的立面形象。
· 户型设计:成都首开股份·臻礼著项目140平户型打造约55平LDKG一体化多功能空间,南向双套房设计,空间尺度阔绰。
· 精装设计:深圳招商四海臻邸二期项目配有全屋智能系统及多重收纳系统,营造舒适的居住环境。
· 园林景观:西安华润世园润府项目延续世博园区自然生态基底,打造集度假休闲、全龄互动等功能为一体的品质空间。
五、优秀项目解析
中海·江南玖序项目位于南京建邺区,总规划建面约10.9万方,规划10栋高层住宅,全案432户,主力户型为200-305平四居产品。项目近邻南京眼步行桥、保利大剧院、青奥双子塔南京国际博览中心等7大文化体育地标,绿博园、滨江公园、青奥公园、鱼嘴公园等生态资源环伺。社区规划上,建筑采用错位布局,窗位正南向法线完全错开,确保每户的视野与采光均佳。立面设计上,项目通过模拟梧桐的叶脉、枝叶交错的形态,创造独特视觉效果,增强建筑的标志性和辨识度。此外,每户均赠送面积约20-30平露台,最大面宽超12米,层高约6.6米,形成“立体化”观景视窗。景观规划上,项目配有约20000平围合式中央景观花园,项目西侧约3000平市政绿化,南北纵向约200米超大中庭,提供了广阔的内部景观空间。项目200平偶数层户型动静分区,日常起居互不干扰。厨房、餐厅、客厅联动设计,形成奢阔的家庭聚场。主卧、次卧与露台形成多空间洄游动线,有效提高空间利用率。同时,项目考虑到不同的烹饪需求和生活习惯,采用中西双厨设计,实现了烹饪功能多样化。
更多住宅产品研究报告,“中指云”获取
https://www.cih-index.com/
住宅产品结构特征
1、全国30城成交面积段分布
从成交套数占比变化上看,与2023年1-11月相比,2024年1-11月30个代表城市中有26个城市120平以上产品成交套数占比上升,改善需求仍是新房市场重要支撑。
图:2024年1-11月30个代表城市各面积段住宅销售套数占比
查看更多数据:https://www.cih-index.com/
2、热点城市结构特征
(1)北京2024年1-11月成交结构特征
从成交面积结构看,2024年1-11月北京90平以下刚需型产品成交8257套,成交套数占比为25.4%,较2023年同期下降6.4个百分点。90-200平产品成交21918套,成交套数占比67.3%,较2023年同期上升5.9个百分点。200平以上产品成交2384套,成交套数占比7.3%,较2023年同期上升0.6个百分点。
从成交总价结构看,500万以下产品成交套数占比41.1%,较2023年同期提升0.9个百分点。500-1000万总价段产品成交套数占比上升至42.8%。1000万以上产品成交套数占比16.0%,较2023年同期下降1.6个百分点。
图:北京商品住宅成交面积结构

图:北京商品住宅成交总价结构

查看更多数据:https://www.cih-index.com/
(2)成都2024年1-11月成交结构特征
从成交面积结构看,2024年1-11月成都90平以下刚需型产品成交套数6488套,成交套数占比6.8%,较2023同期提升0.7个百分点。90-200平产品成交82197套,成交套数占比86.5%,较2023年同期下降1.3个百分点。200平以上大户型产品成交6306套,成交套数占比提升至6.6%。
从成交总价结构看,250万以下产品成交套数占比62.7%,较2023年同期提升3.6个百分点。250-500万产品成交套数占比28.8%,较2023年同期下降3.8个百分点。500万以上产品成交套数占比提升至8.5%。
图:成都商品住宅成交面积结构

图:成都商品住宅成交总价结构

查看更多数据:https://www.cih-index.com/
(3)佛山2024年1-11月成交结构特征
从成交面积结构看,2024年1-11月佛山90平以下产品成交8641套,成交套数占比21.5%,较2023年同期下降1.9个百分点。90-200平产品成交30208套,成交套数占比75.1%,较2023年同期上升1.6个百分点。200平以上大户型产品成交套数占比提升至3.4%。
从成交总价结构看,200万以下产品成交套数占比68.3%,较2023年同期上升7.9个百分点。200-300万产品成交套数占比19.4%,较2023年同期下降2.4个百分点。300万以上产品成交套数占比下降至12.3%。
图:佛山商品住宅成交面积结构

图:佛山商品住宅成交总价结构

查看更多数据:https://www.cih-index.com/
房企产品动态
1、中国金茂&越秀地产新品发布会
11月22日,中国金茂&越秀地产于成都举行新品发布会,现场推出全新产品——天鹭满园,项目定位为高端改善型住宅,选址成都主城2.5环内的鹭岛国际社区旁。项目深度解构当代人居理想追求,凝练出“家庭观、松弛感、生命力”三大核心理念。据悉,项目是中国金茂“金玉满堂”产品战略中“满”系的开篇之作。
图:成都天鹭满园项目实景图

2、绿城华中公司新品发布会
11月9日,绿城华中公司于长沙举行了2024绿城·玉海棠产品发布会,绿城在长沙已有21年发展历程,此次发布会推出的绿城·玉海棠是绿城“海棠系”在长沙的首例作品,此外,发布会现场对绿城海棠系进行了深入解读。项目景观取义东方山水文化,打造了“山水七画境”式下沉庭院,项目考虑当代家庭居住需求痛点,打造长沙新规后首批零公摊住宅。
图:长沙绿城·玉海棠项目效果图

房企产品系解析
近年来,招商蛇口围绕客户需求及审美的变化,打造3+1产品体系,包括天青、启序、揽阅3大产品线,分别对应现代东方、人文美学、自在乐活的产品风格;以及以“玺”为名的高端豪宅风格顶级产品系列。
表:招商蛇口住宅产品线解析

玺系代表项目:合肥·招商玺

项目简介
合肥·招商玺地处滨湖省府西板块,紧邻包河大道、锦绣大道和庐州大道等主干道,同时临近地铁一号线,项目规划10栋10-11F到顶的低密社区。建筑立面将全石材、金属铝板与幕墙窗系统相结合,打造古典与现代相融合的立面形象。社区内部配备了约2300平地下会所、超2000平架空层泛会所等,为业主提供了丰富的社交和休闲空间,项目主力户型为201-342平四居、五居产品。
图:合肥·招商玺项目实景图

201㎡户型设计亮点
· 南向四面宽,三卧室朝南,采光充足。厨房、餐厅、客厅一字贯通设计,实现真正意义上的南北通透。
· 双卧室套房设计,主卧带有双台盆洗浴系统,同时设有衣帽间,提升居住舒适度,主卧“L”型转角飘窗,观景视野阔绰。
· 客厅及次卧形成洄游动线,提升空间利用率。百变空间布局,南向卧室可打通形成横厅。
图:合肥·招商玺201平户型

产品设计亮点
1、建筑立面:项目汲取荆楚文化,借鉴楚式双檐造型,打造层次丰富、错落有致的立面形象
武汉中建壹品·汉韵公馆:项目对露台、隐私露台与阳台占比、核心筒等三项进行系统研究,建立了一套垂直体系。建筑设计上,项目汲取荆楚文化,将“凤鸟、编钟、云纹”等元素融入住宅立面,用楚建筑三大传统基色装点空间细节,楼顶借鉴楚式双檐造型,层次丰富、错落有致,提升了建筑的立体感。建筑选材上,项目以玻璃幕墙为主,配以铝板线条和金属漆,加上独特的弧形造型,提升了项目的昭示性。
图:武汉中建壹品·汉韵公馆建筑效果图

2、户型设计:140平户型打造约55平LDKG一体化多功能空间,南向双套房,空间尺度阔绰
成都首开股份·臻礼著:140平户型双套房超南设计,其中主卧套房约30平,配置了双衣帽间及双台盆,尺度阔绰。约55平LDKG一体化多功能空间,拥有超大采光面和观景视野,将社交、会客、烹调、观景等功能区连成一线。X可变空间则可以根据居者的需求进行灵活改造,如设置为书房、休闲区、儿童游乐区等,满足不同家庭阶段和生活场景的需求。开放式厨房与生活阳台直接衔接,增强整个户型的“社交属性”。
图:成都首开股份·臻礼著140平户型图

3、精装设计:项目以实现城市品质人居生活为出发点,打造5重精装系统
深圳招商四海臻邸二期:项目入户设有通顶玄关柜体,延伸收纳空间,同时配备了除臭精灵。餐厅使用了吸塑造型柜门与定制墙布,营造秩序统一的界面。客厅地面使用了约0.5mm密缝连纹工艺,仿石材质感和纹理,提升空间的美观度和视觉延展度。客餐厅和主卧天花采用定制圆弧石膏线,增加空间层次感;全屋卫浴标配双倍镜柜收纳系统,整洁收纳,置用有序。主卫配有恒温淋浴组合&全屋三合一(排气、暖气、换气)线性浴霸,亦配有智能马桶,打造智净新体验。
图:深圳招商四海臻邸二期样板间实景图

4、园林景观:项目延续世博园区自然生态基底,打造集度假休闲、全龄互动等功能为一体的品质空间
西安华润世园润府:项目位于西安浐灞国际港,紧挨世博园东侧,园林设计结合地区文化及环境特点,延续世博园区自然生态基底,采用“新山水”的设计理念,通过“引湖入园,引园入境”的设计手法,打造集度假休闲、形象会客、全龄互动等功能为一体的品质空间。此外,项目通过“关中八景”主题景观的串联延续,实现了城景、河景、园景、湖景、院景五景融合,园林与湖泊、社区与自然相互渗透、相互借景。
图:西安华润世园润府项目实景图

优秀项目解读
中海·江南玖序项目位于南京建邺区,项目总规划建面约10.9万方,规划10栋高层住宅,全案共432户,主力户型为建筑面积约200-305平四居产品。
项目近邻南京眼、保利大剧院、青奥双子塔南京国际博览中心等7大文化体育地标,亦有约2200万方地标级商圈,包括新鸿基IFC、河西德基广场、华采天地、嘉华国际中心、龙湖南京河西天街等。医疗配套方面,项目周边有明基医院、河西儿童医院、南京国际医院(已开业)等三甲医院。生态资源方面,绿博园、滨江公园、青奥公园、鱼嘴公园等生态资源环伺。
社区规划上,建筑采用错位布局,窗位正南向法线完全错开,迎风向阳,确保每户的视野与阳光均佳。立面设计上,通过模拟梧桐的叶脉、枝叶交错的形态,创造独特视觉效果,增强建筑的标志性和辨识度。色彩搭配上,采用古铜色金属及米白石材,打造沉稳、庄重的立面形象,同时,项目采用平推落地取景玻璃窗,提供无遮挡视野。此外,每户均赠送约20-30平露台,最大面宽超12米,层高约6.6米,形成“立体化”观景视窗。项目通过奇偶层平权化、采光私密平衡化、空中花园创新设计等方式,将地面的庭院“搬”到空中。
图:南京中海·江南玖序建筑效果图

景观规划上,江南玖序项目整体呈围合式布局,整体占地约4.4万方,带有约20000平纯正围合式中央景观花园,项目西侧约3000平市政绿化,南北纵向约200米超大中庭,提供了更广阔的内部景观空间。景观设计上,项目遵循“在地化”设计理念,从《永乐大典》中提炼艺术意境,结合南京金陵的文化理念,将礼序与艺术融于景观系统。项目10栋楼首层全部为景观架空,复式产品的楼栋打造1-2层的双层架空大堂设计,庭院景观与架空层无界融合,增强了社区的景观整体性和连贯性。
图:南京中海·江南玖序园林实景图

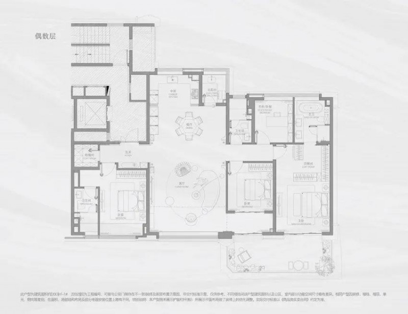
户型设计上,200平偶数层户型动静分区,日常起居互不干扰。厨房、餐厅、客厅联动设计,形成奢阔的家庭聚场。主卧、次卧与露台形成多空间洄游动线。侧阳台设计为家政间,家居生活整洁有序。项目考虑到不同的烹饪需求和生活习惯,采用中西双厨设计,中厨操作台面大,可满足多人协作料理,同时容纳各种家电;西厨空间宽敞,可作为轻食、烘焙等制作区域。
图:南京中海·江南玖序200平户型图(偶数层)


➤政策解读
中央经济工作会议:持续用力推动房地产市场止跌回稳
www.cih-index.com/report/detail/90035.html
两部门发文,城中村改造货币化安置或将提速
www.cih-index.com/report/detail/88227.html
运用专项债收购存量土地细则落地,这些要点值得关注!
www.cih-index.com/report/detail/87109.html
➤企业研究
2024年1-11月中国房地产企业销售业绩排行榜
www.cih-index.com/report/detail/88786.html
2024年1-11月全国房地产企业拿地TOP100排行榜
www.cih-index.com/report/detail/88576.html
房企风险化解要这样做
www.cih-index.com/report/detail/89887.html
➤房地产市场
中指法拍市场监测报告:1-11月天津法拍住宅成交清仓率38%,收金26.3亿元
www.cih-index.com/report/detail/90230.html
2024年1-11月全国房地产开发经营数据解读
www.cih-index.com/report/detail/90137.html
2024年11月中国住房租赁企业规模排行榜
www.cih-index.com/report/detail/89536.html
➤指数研究
中国房地产指数系统百城价格指数报告(2024年11月)
www.cih-index.com/report/detail/88781.html
2024年三季度中国百城地价指数报告
www.cih-index.com/report/detail/85808.html
➤物业研究
2024物业上市服务公司ESG测评研究报告
www.cih-index.com/report/detail/90235.html
2024年中国物业服务价格指数研究报告
www.cih-index.com/report/detail/90236.html